
Kindergarten
Wettbewerb | 2021 | Blankenhain
mit Alkewitz Landschaftsarchitekten
Ziel des Entwurfes für den Neubau des Kindergartens Blankenhain ist es, ein durch und durch ökologisches Gebäude zu entwickeln. Ökologie im eigentlichen Sinne meint die Beziehungen von Lebewesen untereinander. Um diese Beziehungen zwischen Menschen, Pflanzen und Tieren zu fördern, bedarf es einer Architektur, die sich sensibel und respektvoll mit ihrer Umgebung auseinandersetzt und durch ihre Ausformulierung ermöglicht, eine intime Verbindung zwischen den verschiedenen Organismen an einem Ort zu schaffen.
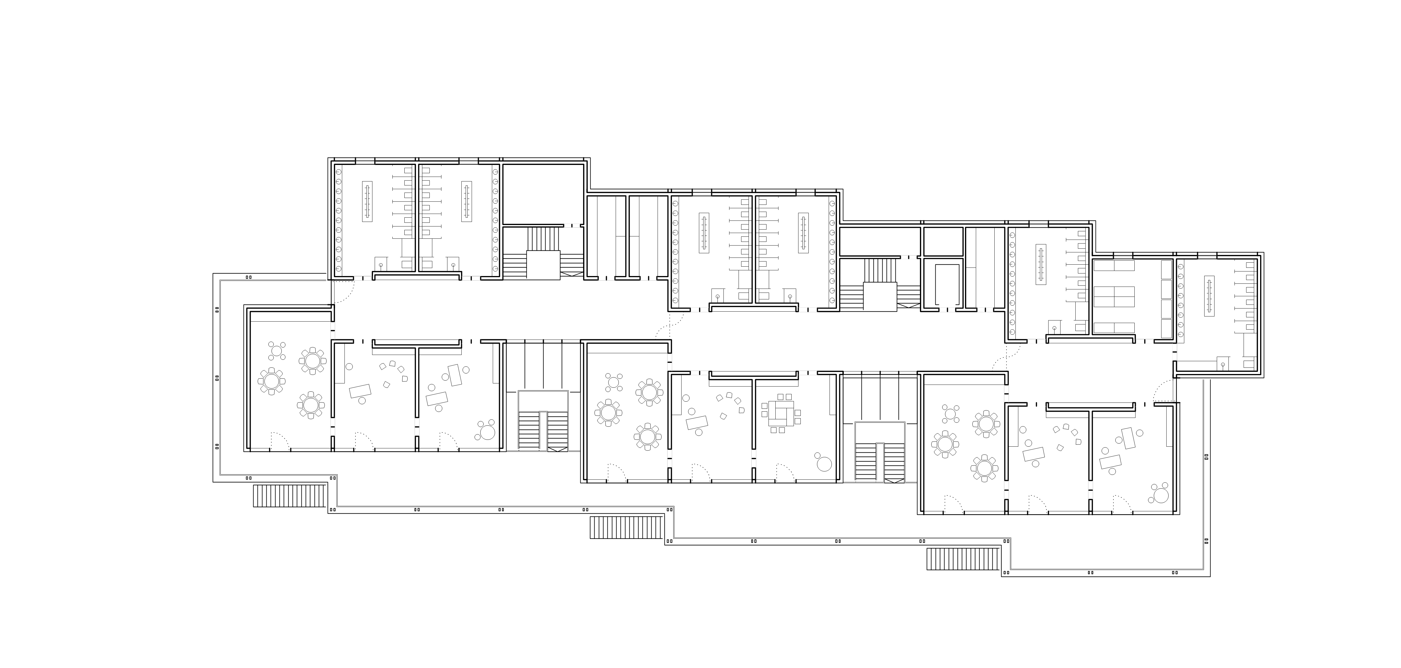
Von besonderer Wichtigkeit ist der Umgang mit dem Baumbestand, daher ist das Gebäude so situiert, dass die Fällung einer möglichst geringen Anzahl an Bäumen im Stadtpark nötig wird. Im Norden nimmt das Haus die Flucht der Wohnhäuser im Osten auf und formt durch seine volumetrischen Verschiebungen einen Ankommensbereich aus. Diese baukörperliche Gliederung ermöglicht auch, das Gebäude topografisch besser in den Hang einzubetten und ein für den Ort relativ großes Raumprogramm in einen kontextsensiblen Maßstab zu übersetzen.
Das Gebäude öffnet sich zu seinem natürlichen Umfeld hin. Alle Aufenthaltsräume erhalten einen großzügigen Ausblick und direkten Austritt auf den Laubengang in Richtung des Parks im Süden. Auch die Erschließungsräume erlauben Blickbeziehungen ins Grüne. Die Spielflure sind großzügig geplant und werden natürlich belüftet und belichtet.
Durch die Topografie auf dem Grundstück lassen sich zwei ebenerdig erschließbare Geschosse ausbilden. Im Erdgeschoss befinden sich die gemeinschaftlich genutzten Räume, welche vom Straßenniveau aus begehbar sind. Die Räumlichkeiten der Kinderkrippe liegen darunter im Hanggeschoss, welches nach Süden zum Park hin ebenerdig ist. Im ersten Obergeschoss sind die Räume des Kindergartens angeordnet. Sowohl die Krippe als auch der Kindergarten richten die Aufenthaltsräume nach Süden aus, während WCs und Lagerräume im Norden liegen.
Um den Kindergarten auch in seiner architektonischen Ausformulierung in sein ökologisches Umfeld einzubetten, handelt es sich bei dem Entwurf um einen Massivholzbau aus Brettsperrholz. Die Fassade bildet eine hinterlüftete Holzschalung, welche im Norden aufgelockert ist, um dahinterliegende Räume belichten und belüften zu können; die Aufenthaltsräume im Süden erhalten eine Holz-Pfosten-Riegel-Fassade, vor welcher ein großzügiger, hölzerner Laubengang zwischen den Innen- und Außenräumen vermittelt.




