Casa S

Direktauftrag LP 1 – 5 | 2020 | Ludwigsburg

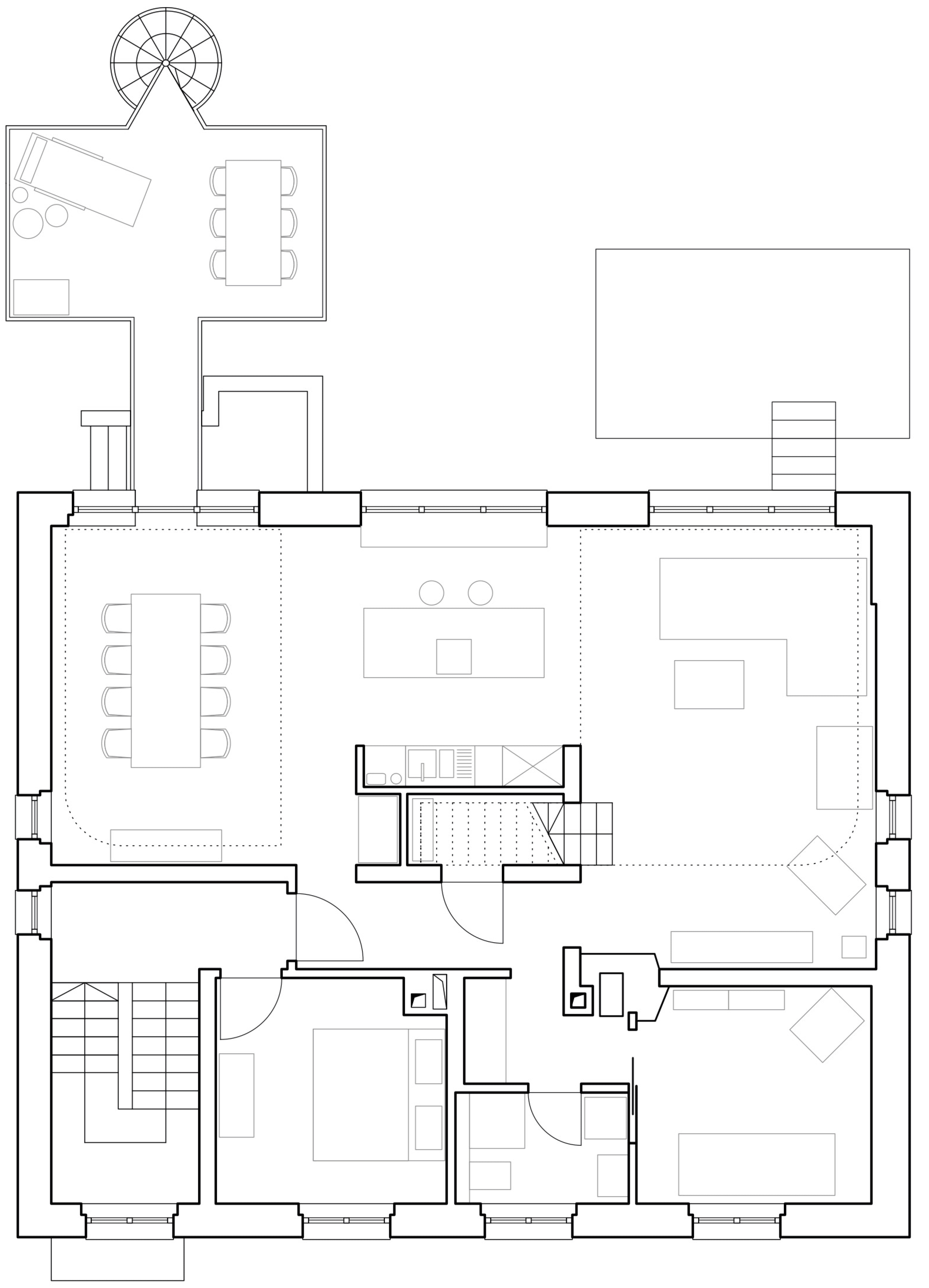
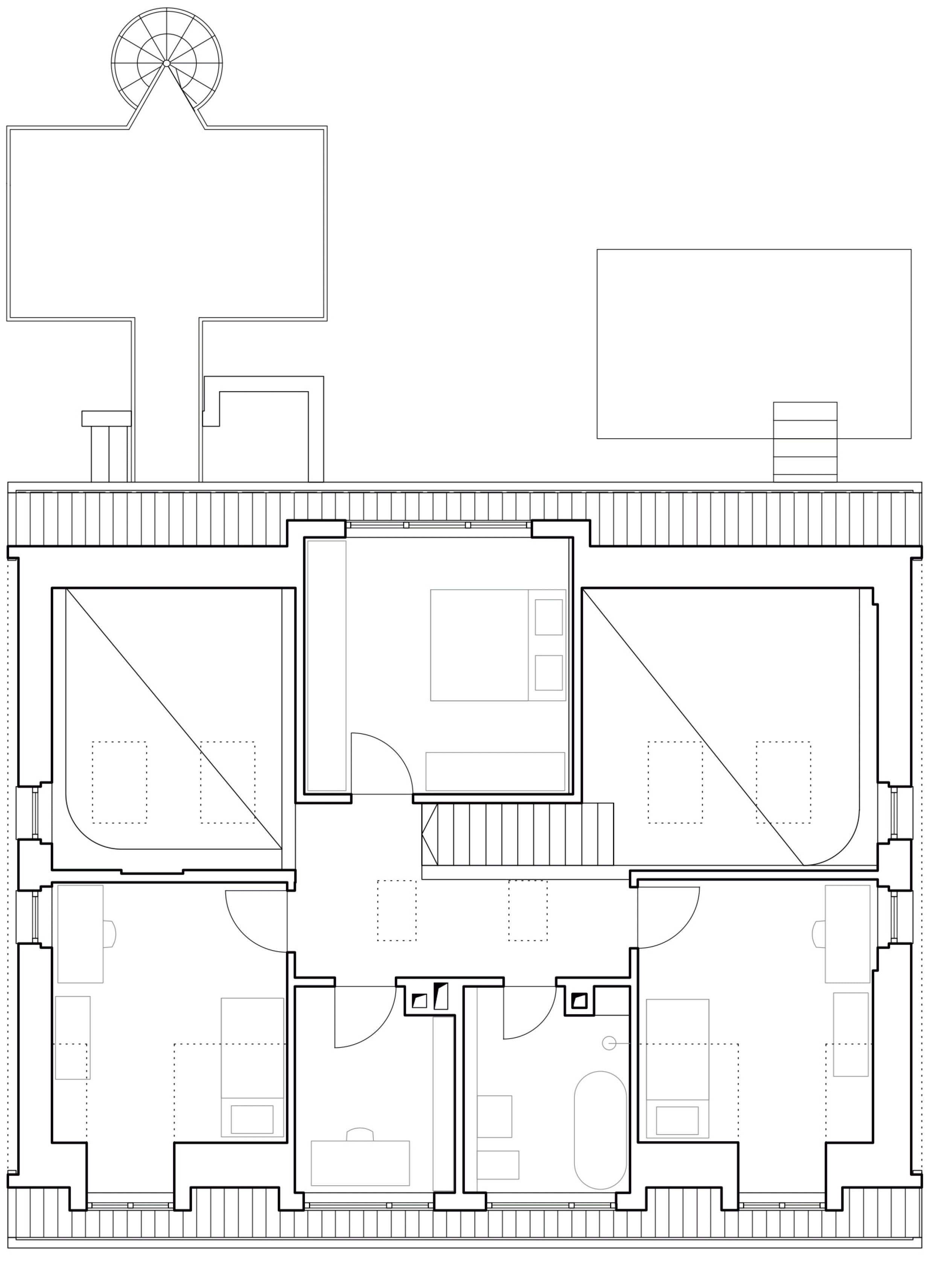
Das bestehende Haus aus dem Jahr 1966 gehört der Bauherrin, die mit ihrem Freund in der Hochparterre-Wohnung einziehen möchte. Gemeinsam mit ihrer Tochter und deren Ehemann bildet sie die Bauherrengemeinschaft – letztere möchten die oberen beiden Wohnungen zusammenlegen und beziehen.

Das Haus wird energetisch saniert und umgebaut. In der oberen Wohnung werden einige Wände entfernt, sodass auf der Südseite zum Garten hin ein großzügiger Wohn-Koch-Essraum entsteht. Des Weiteren werden über dem Wohnzimmer und dem Esszimmer zwei Decken herausgenommen, um Lufträume mit zahlreichen Blickbeziehungen zu erzeugen. Der bestehende, sehr schlanke Balkon wird den Wohnräumen zugeschlagen - anstatt dessen erhält die untere Wohnung eine Terrasse im Garten, die obere Wohnung erhält einen Balkon auf dem neu zu errichtenden gemeinschaftlichen Gewächshaus.
Die Bauanträge wurden im Juli 2020 eingereicht.
































































































































Memorium Nürnberger Prozesse    |    Adaptives Doppelfenster    |    Kita mit Schule Aichwald    |    Feuerwehr Markt Kaufering    |    Kindergarten Blankenhain    |    KiTa Pellingen    |    Erlebniswelt Inselsberg    |    Polizeipräsidium Ravensburg    |    Hochhaus Schwarzwaldstraße    |    Gedänkstätte Konzentrationslager Sachsenburg    |    Haus R    |    Feuerwehr Eching    |    Casa S    |    Wohnungsbau Freihampton