Feuerwehrhaus
Wettbewerb | 2021 | Markt Kaufering
mit Alkewitz Landschaftsarchitekten
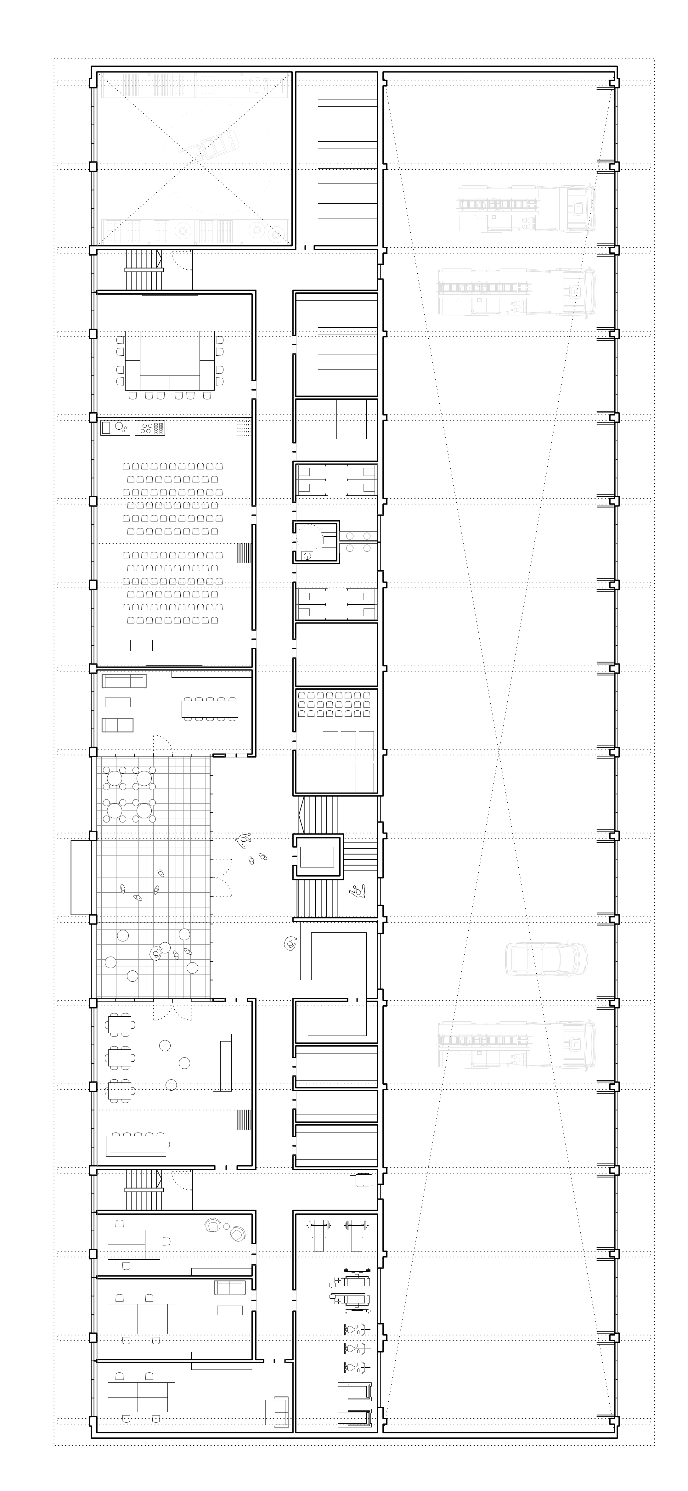
Die Feuerwehr liegt in der Ortsmitte von Markt Kaufering und möchte sich zur belebten Kolpingstraße hin öffnen und repräsentieren. Da die großen Feuerwehrtore das Wiedererkennungsmerkmal bei einer Feuerwehr sind, welche gleichzeitig auch einen spannenden Einblick in die Innenräume ermöglichen, wird die Ostfassade in ihrer Struktur auf die Westseite übertragen. Dadurch ist auch von Westen direkt erkennbar, dass es sich bei dem Gebäude um das Feuerwehrhaus von Markt Kaufering handelt.
Das Foyer stellt den Mittelpunkt und Verteiler des Gebäudes dar. Von hier aus gelangt man in die Räumlichkeiten der Einsatzkräfte, in die Fahrzeughalle und ins Obergeschoss. Dort liegen die Räume für Verwaltung, Schulung, Gemeinschaft und Fitness. Sie sind über einen Flur erschlossen, der sich immer wieder aufweitet und Blickbeziehungen in den Außenraum im Westen und in die Fahrzeughalle im Osten ermöglicht. Das Herz des Obergeschosses bildet die Terrasse oberhalb des Foyers, welche von der offenen Küche, dem Jugendraum und dem Stüberl gesäumt wird.
Bei dem Gebäude handelt es sich um einen Holzbau, da es sich hierbei um einen nachwachsenden, ökologischen und rezyklierfähigen Baustoff handelt. Das Dachtragwerk besteht aus großen Brettschichtholzträgern, welche das Gebäude in Querrichtung überspannen und jeweils auf drei Holzstützen aufgelagert sind. Die zwei Fluchttreppenhäuser sowie der Aufzugskern dienen dem Gebäude zur Aussteifung. Die Räume auf der Westseite des Gebäudes sind somit in die Halle eingestellt und tragen über Brettschichtholzwände und -decken. Das hat außerdem den Vorteil, dass das Gebäude mit der Zeit einfach angepasst und umgebaut werden und eines Tages auch ganz neuen Nutzungen dienen kann, was einen zusätzlichen Vorteil im Sinne der Nachhaltigkeit bedeutet.
Wettbewerb | 2021 | Markt Kaufering
mit Alkewitz Landschaftsarchitekten
Die Feuerwehr liegt in der Ortsmitte von Markt Kaufering und möchte sich zur belebten Kolpingstraße hin öffnen und repräsentieren. Da die großen Feuerwehrtore das Wiedererkennungsmerkmal bei einer Feuerwehr sind, welche gleichzeitig auch einen spannenden Einblick in die Innenräume ermöglichen, wird die Ostfassade in ihrer Struktur auf die Westseite übertragen. Dadurch ist auch von Westen direkt erkennbar, dass es sich bei dem Gebäude um das Feuerwehrhaus von Markt Kaufering handelt.
Das Foyer stellt den Mittelpunkt und Verteiler des Gebäudes dar. Von hier aus gelangt man in die Räumlichkeiten der Einsatzkräfte, in die Fahrzeughalle und ins Obergeschoss. Dort liegen die Räume für Verwaltung, Schulung, Gemeinschaft und Fitness. Sie sind über einen Flur erschlossen, der sich immer wieder aufweitet und Blickbeziehungen in den Außenraum im Westen und in die Fahrzeughalle im Osten ermöglicht. Das Herz des Obergeschosses bildet die Terrasse oberhalb des Foyers, welche von der offenen Küche, dem Jugendraum und dem Stüberl gesäumt wird.
Bei dem Gebäude handelt es sich um einen Holzbau, da es sich hierbei um einen nachwachsenden, ökologischen und rezyklierfähigen Baustoff handelt. Das Dachtragwerk besteht aus großen Brettschichtholzträgern, welche das Gebäude in Querrichtung überspannen und jeweils auf drei Holzstützen aufgelagert sind. Die zwei Fluchttreppenhäuser sowie der Aufzugskern dienen dem Gebäude zur Aussteifung. Die Räume auf der Westseite des Gebäudes sind somit in die Halle eingestellt und tragen über Brettschichtholzwände und -decken. Das hat außerdem den Vorteil, dass das Gebäude mit der Zeit einfach angepasst und umgebaut werden und eines Tages auch ganz neuen Nutzungen dienen kann, was einen zusätzlichen Vorteil im Sinne der Nachhaltigkeit bedeutet.






