Haus R

Direktauftrag LP 1 – 5 | 2020 – 2022 | Hemmendorf

In einem kleinen Dorf in der Nähe von Tübingen hatten sich die Bauherr*innen ein Grundstück gekauft und ein schlichtes, schwarzes Holzhaus gewünscht.

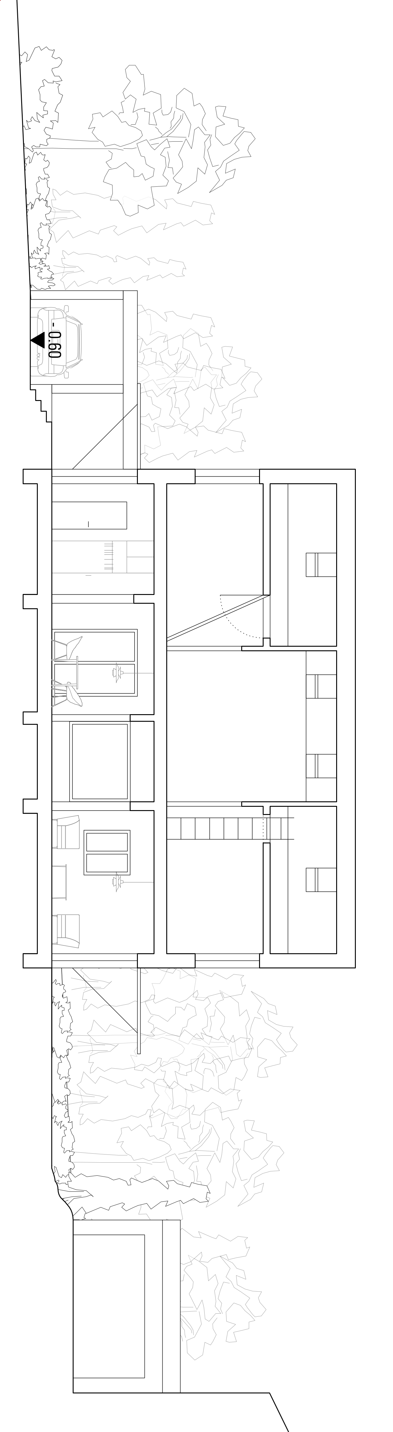
Die Setzung der Baukörper bezweckt, den Carport mit Stauraum und Gartenlaube in den Hintergrund zu rücken und gleichzeitig den privaten Teil des Gartens flächenmäßig zu maximieren.

Im Erdgeschoss gelangt man über die Diele in den Gemeinschaftsraum, in welchem durch das Treppenhaus und das ihm gegenüberliegende Sitzfenster eine Zonierung in Küche-/Essraum und Wohnraum entsteht. Im Obergeschoss befinden sich zwei Kinderzimmer, das Elternschlafzimmer, ein Arbeits-/Gästezimmer und zwei Bäder.

Das Haus wurde 2022 fertiggestellt und bezogen.






























































































































Memorium Nürnberger Prozesse    |    Adaptives Doppelfenster    |    Kita mit Schule Aichwald    |    Feuerwehr Markt Kaufering    |    Kindergarten Blankenhain    |    KiTa Pellingen    |    Erlebniswelt Inselsberg    |    Polizeipräsidium Ravensburg    |    Hochhaus Schwarzwaldstraße    |    Gedänkstätte Konzentrationslager Sachsenburg    |    Haus R    |    Feuerwehr Eching    |    Casa S    |    Wohnungsbau Freihampton