
Erlebniswelt Inselsberg
Wettbewerb | 2021 | Inselsberg-Plateau
mit Alkewitz Landschaftsarchitekten
Das städtebauliche Gesamtkonzept sieht eine Neuordnung und Beruhigung der räumlichen Disposition auf dem Inselsberg-Plateau vor. Ziel ist es, klar definierte Räume mit unterschiedlichen Funktionen, Ausblicken und Atmosphären zu erzeugen.
Die Erlebniswelt auf dem Inselsberg ist mehr als nur ein Ausstellungsgebäude; auf einem steinernen Sockel erhebt sich eine emblematische Architektur mit klarer volumetrischer Formensprache. Durch ihre metallisch-reflektierende Fassade spiegelt sie den Himmel und die Bäume um sich herum und bettet sich dadurch in ihre Umgebung ein. Andererseits reflektiert sie die Sonne, ist daher im gesamten Umkreis zu bestimmten Tages- und Jahreszeiten erkennbar und entfaltet eine große Stahlkraft und Fernwirkung. Die Erlebniswelt wird somit ein wichtiger Teil der Silhouette auf dem Inselsberg und in der kollektiven Wahrnehmung zum Inbegriff eines Besuches auf dem Bergplateau.
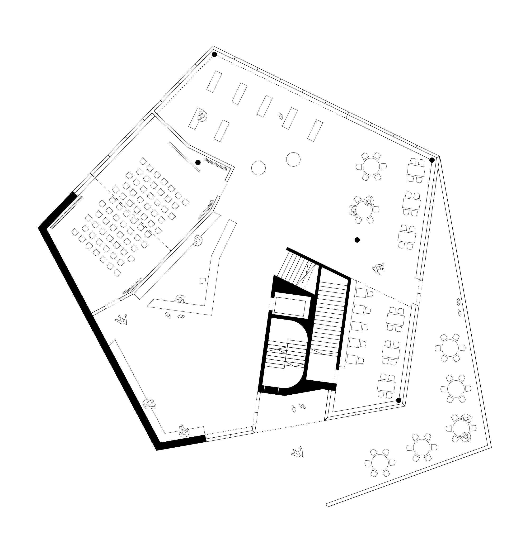
Im Erdgeschoss befinden sich das Foyer, die Cafeteria, der Museumsshop und der Vortragsraum. In den Obergeschossen liegt die Ausstellung, welche über Terrassenzugänge verfügen und die Möglichkeit bieten, in jeweils verschiedene Himmelsrichtungen zu blicken. Oberhalb der Ausstellung befindet sich die Dachterrasse, welche einen spektakulären Rundum-Blick ermöglicht und ein kleines Highlight ans Ende der Ausstellung setzt: nirgendwo sonst auf dem Inselsberg ist ein unverstellter Ausblick im Außenbereich auf einer solchen Höhe vorhanden.





